WIELORODZINNY BOLESŁAWA ŚMIAŁEGO
ZNAJDŹ SWOJE MIEJSCE
Poznaj naszą inwestycję przy ulicy Bolesława Śmiałego, kameralny budynek zlokalizowany na osiedlu Żarków. Wybieraj spośród funkcjonalnych mieszkań, w naszej ofercie znajdziesz kawalerki, mieszkania dwu- i trzypokojowe oraz mieszkania z antresolami.
NOWY STANDARD ŻYCIA
W naszym budynku powstaną również komórki lokatorskie oraz parking podziemny. Robimy wszystko tak, aby żyło Ci się w pełnym komforcie. Oprócz tego cały kompleks zostanie zamknięty w kształcie czworoboku, co zapewni mieszkańcom większą prywatność. W środku znajdzie się miejsce przyjazne dla dzieci – nowoczesny plac zabaw, chodniki oraz zieleń.
WSZYSTKO NA WYCIĄGNIĘCIE RĘKI
Spokojne i ciche osiedle, z dala od hałasu miasta, a jednocześnie bliskość wszystkich najpotrzebniejszych miejsc, myślisz, że to niemożliwe? U nas to możliwe. W najbliższej okolicy znajdziesz sklepy, szkołę, przystanki autobusowe, usługi oraz skwery zieleni i miejsca rekreacji. Zasługujesz na to co najlepsze i my jesteśmy gotowi Ci to dać – sprawdź co dla Ciebie przygotowaliśmy.
TABELA MIESZKAŃ
| Nr lokalu i klatki | Metraż | Piętro | Ilość pokoi | Powierzchnia dodatkowa | W tym pow. użytkowa antresoli | Aneks kuchenny | Cena za m kw. | Cena | Najniższa cena z ostatnich 30 dni | Status | Rzut mieszkania |
|---|---|---|---|---|---|---|---|---|---|---|---|
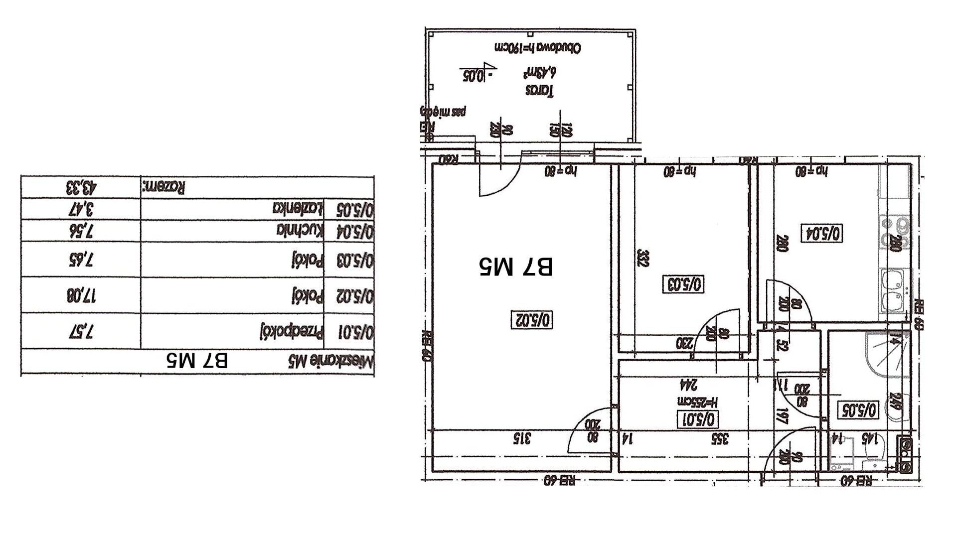
| M5K7 | 43,33 m2 | parter | 2 | taras: 6,43 m2 | ‑ | nie | 7 500,00 zł | 324 975,00 zł | 324 975,00 zł | wolne | podgląd |
| M12 K7 | 44,64 m2 | drugie | 2 | balkon: 4,14 m2 | ‑ | nie | 6 900,00 zł | 308 016,00 zł | 308 016,00 zł | rezerwacja | podgląd |
| M15 K7 | 53,16 m2 | drugie | 3 | balkon: 4,14 m2 | ‑ | nie | 6 900,00 zł | 366 804,00 zł | 366 804,00 zł | wolne | podgląd |
| M5 K6 | 53,68 m2 | pierwsze | 2 | balkon: 4,14 m2 | ‑ | nie | 6 900,00 zł | 370 392,00 zł | 370 392,00 zł | rezerwacja | podgląd |
| M17 K7 | 54,75 m2 | trzecie | 2 | balkon: 4,14 m2 | 9,71 m2 | nie | 6 500,00 zł | 355 875,00 zł | 355 875,00 zł | rezerwacja | podgląd 1 podgląd 2 |
| M13 K8 | 59,38 m2 | trzecie | 2 | brak | 19,89 m2 | tak | 6 652,08 zł | 395 000,00 zł | 380 032,00 zł | wolne | podgląd 1 podgląd 2 |
| M10 K6 | 59,82 m2 | trzecie | 2 | balkon: 4,14 m2 | 16,79 | nie | 6 500,00 zł | 388 830,00 zł | 388 830,00 zł | wolne | podgląd 1 podgląd 2 |
| M18 K7 | 61,77 m2 | trzecie | 2 | balkon: 4,14 m2 | 23,26 m2 | nie | 6 500,00 zł | 401 505,00 zł | 401 505,00 zł | wolne | podgląd 1 podgląd 2 |
| M11 K8 | 64,97 m2 | drugie | 3 | balkon: 4,14 m2 | ‑ | nie | 6 900,00 zł | 448 293,00 zł | 448 293,00 zł | wolne | podgląd |
| M7 K8 | 65,11 m2 | pierwsze | 3 | balkon: 4,14 m2 | ‑ | nie | 9 522,35 zł | 620 000,00 zł | 449 259,00 zł | wolne | podgląd |
| M3 K8 | 65,28 m2 | parter | 3 | taras: 6,2 m2 | ‑ | nie | 7 500,00 zł | 489 600,00 zł | 489 600,00 zł | wolne | podgląd |
| M20 K7 | 66,30 m2 | trzecie | 3 | balkon: 4,14 m2 | 12,65 m2 | nie | 6 500,00 zł | 430 950,00 zł | 430 950,00 zł | wolne | podgląd 1 podgląd 2 |
| M9 K6 | 68,58 m2 | trzecie | 4 | balkon: 4,14 m2 | 10,61 m2 | tak | 6 500,00 zł | 445 770,00 zł | 445 770,00 zł | wolne | podgląd 1 podgląd 2 |
| M11 K6 | 74,46 m2 | trzecie | 3 | balkon: 4,14 m2 | 21 m2 | nie | 6 500,00 zł | 483 990,00 zł | 483 990,00 zł | wolne | podgląd 1 podgląd 2 |
| M16 K7 | 74,88 m2 | trzecie | 3 | balkon: 4,14 m2 | 24,34 m2 | nie | 6 500,00 zł | 486 720,00 zł | 486 720,00 zł | wolne | podgląd 1 podgląd 2 |
| Miejsca postojowe w hali garażowej | |||
| NR MIEJSCA | WYMIAR | METRAŻ | CENA |
| 1 | 5,28 x 2,95 | 15,58 | 39 360,00 zł |
| 3 | 5,34 x 2,68 | 14,32 | 36 900,00 zł |
| 4 | 5,34 x 2,68 | 14,32 | 36 900,00 zł |
| 5 | 6,08 x 2,84 | 17,27 | 44 500,00 zł |
| 6 | 6,08 x 2,84 | 17,27 | 44 500,00 zł |
| 8 | 6,08 x 2,73 | 16,6 | 39 360,00 zł |
| 9 | 6,08 x 2,73 | 16,6 | 39 360,00 zł |
| 11 | 6,2 x 2,58 | 15,99 | 39 360,00 zł |
| 12 | 6,2 x 2,58 | 15,99 | 39 360,00 zł |
| 13 | 6,2 x 3,36 | 20,84 | 49 200,00 zł |
| 16 | 5,68 x 2,99 | 16,99 | 43 700,00 zł |
| 17 | 5,68 x 3,56 | 20,22 | 49 200,00 zł |
| 18 | 5,43 x 2,87 | 15,59 | 39 360,00 zł |
| 19 | 5,43 x 2,87 | 15,59 | 39 360,00 zł |
| 20 | 6,12 x 2,68 | 16,41 | 39 360,00 zł |
| 24 | 5,73 x 2,98 | 17,08 | 44 000,00 zł |
| 25 | 5,73 x 2,98 | 17,08 | 44 000,00 zł |
| 27 | 5,73 x 3,42 | 19,6 | 49 200,00 zł |
| 28 | 5,73 x 2,88 | 16,51 | 39 360,00 zł |
| 29 | 5,73 x 2,88 | 16,51 | 39 360,00 zł |
| 31 | 5,73 x 2,58 | 14,79 | 36 900,00 zł |
| 32 | 5,73 x 2,58 | 14,79 | 36 900,00 zł |
| 33 | 5,73 x 2,56 | 14,67 | 36 900,00 zł |
| 34 | 5,73 x 2,56 | 14,67 | 36 900,00 zł |
| 39 | 5,73 x 2,88 | 16,51 | 39 360,00 zł |
| 40 | 5,73 x 2,88 | 16,51 | 39 360,00 zł |
| 42 | 5,73 x 2,69 | 15,42 | 39 360,00 zł |
| 43 | 5,73 x 2,69 | 15,42 | 39 360,00 zł |
| Komórki lokatorskie w hali garażowej | |||
| NR KOMÓRKI LOKATORSKIEJ | WYMIAR | METRAŻ | CENA |
| K6/-1.07 | 2,86 x 1,6 + 1,9 x 1,0 | 6,28 | 25 120,00 zł |
| K6/-1.10 | 2,86 x 1,83 | 5,09 | 20 360,00 zł |
| K7/-1.08 | 3,36 x 1,68 | 5,49 | 21 960,00 zł |
| K7/-1.14 | 4,0 x 1,74 | 6,78 | 27 120,00 zł |
| K7/-1.15 | 4,0 x 1,74 | 6,78 | 27 120,00 zł |
| K7/-1.18c | 3,87 x 1,6 | 6,2 | 24 800,00 zł |
| K7/-1.18d | 3,87 x 1,6 | 6,2 | 24 800,00 zł |
| K7/-1.18e | 3,87 x 1,7 | 6,2 | 24 800,00 zł |
| K7/-1.18f | 3,87 x 1,8 | 6,2 | 24 800,00 zł |
| K7/-1.18g | 3,87 x 1,9 | 6,2 | 24 800,00 zł |
| K7/-1.18h | 3,87 x 1,10 | 6,2 | 24 800,00 zł |
| K7/-1.18i | 3,87 x 1,11 | 6,2 | 24 800,00 zł |
| K7/-1.18j | 3,87 x 1,12 | 6,2 | 24 800,00 zł |
| K8/-1.08a | 3,74 x 1,8 | 6,83 | 27 320,00 zł |
Prospekt informacyjny
Dodatkowe koszty, które będzie musiał ponieść Nabywca to: opłaty administracyjne, opłaty za media, opłata za notarialną umowę deweloperską (jeśli występuje), opłata za notarialną umowę przeniesienia praw własności.
DANE DEWELOPERA
MERT Jerzy Saprun
Ul. Portowa 1
67-200 Głogów
NIP: 693-117-35-79
697 100 191
deweloper@mertdom.pl
